38 AR.
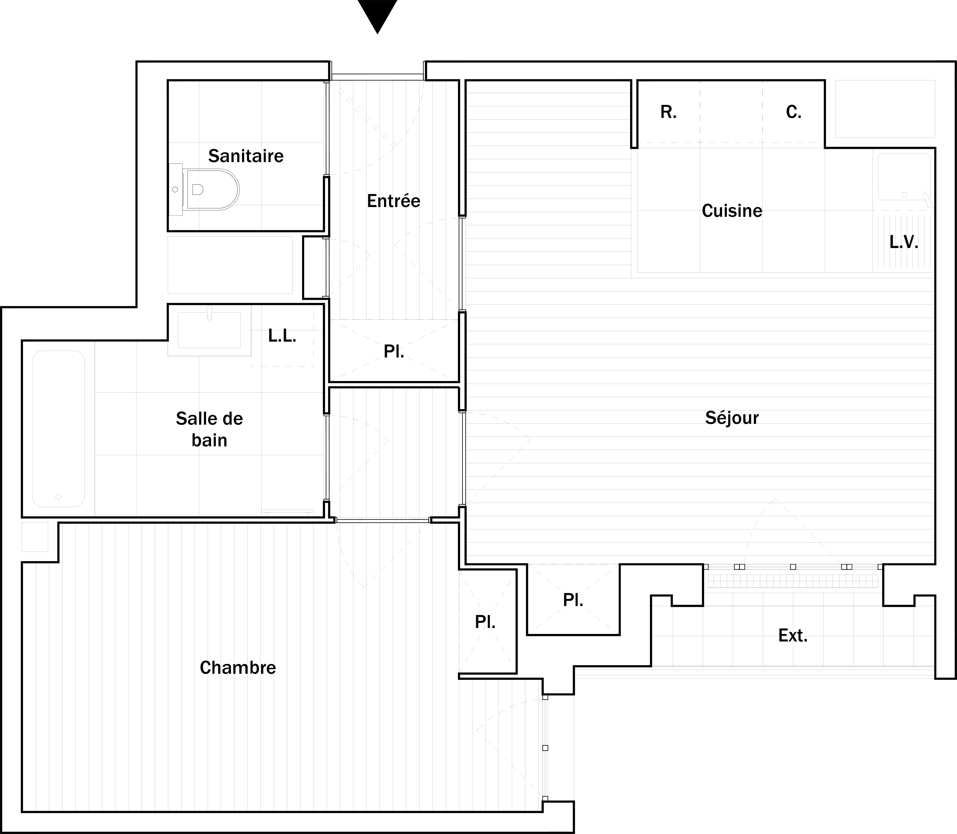
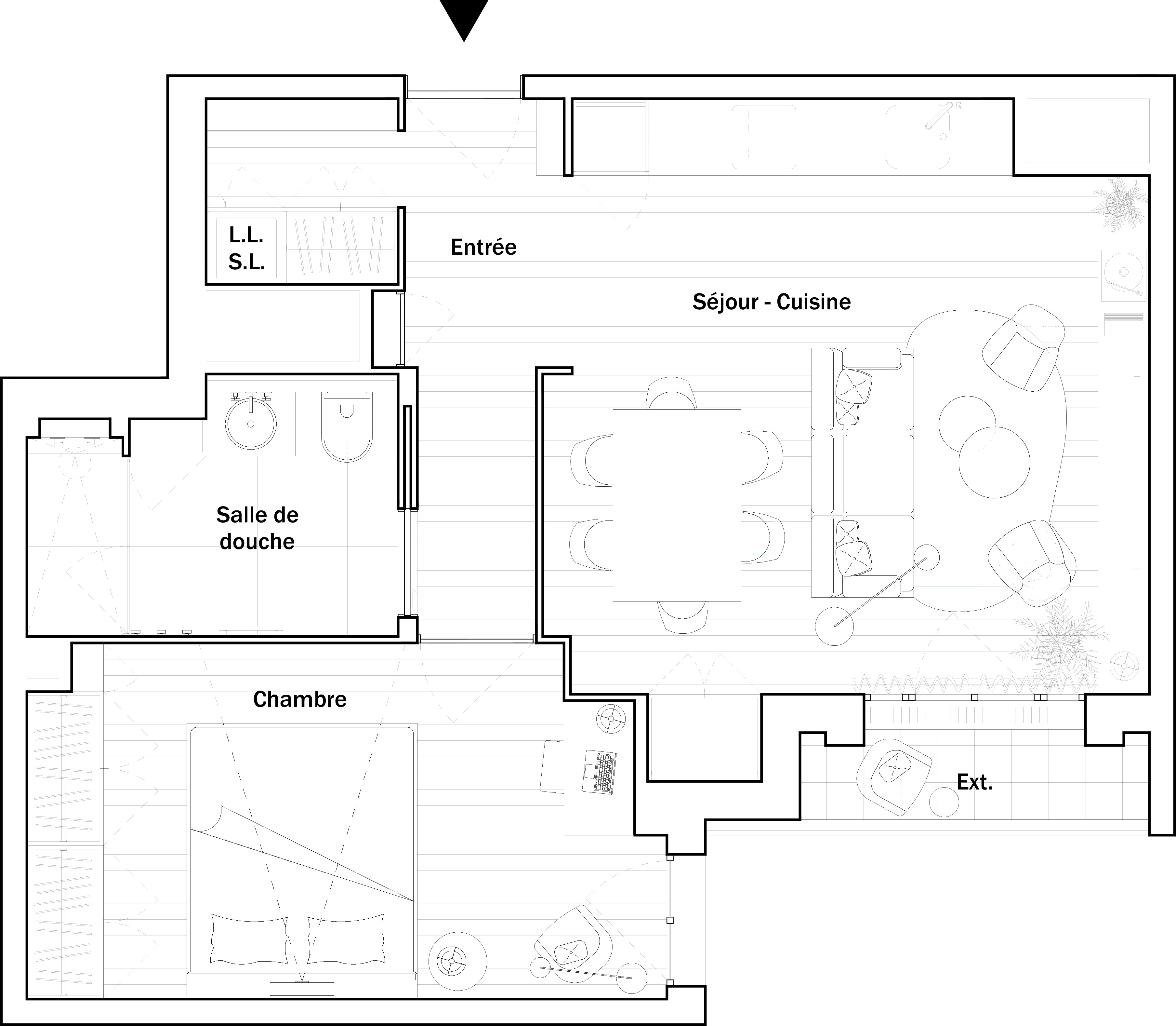
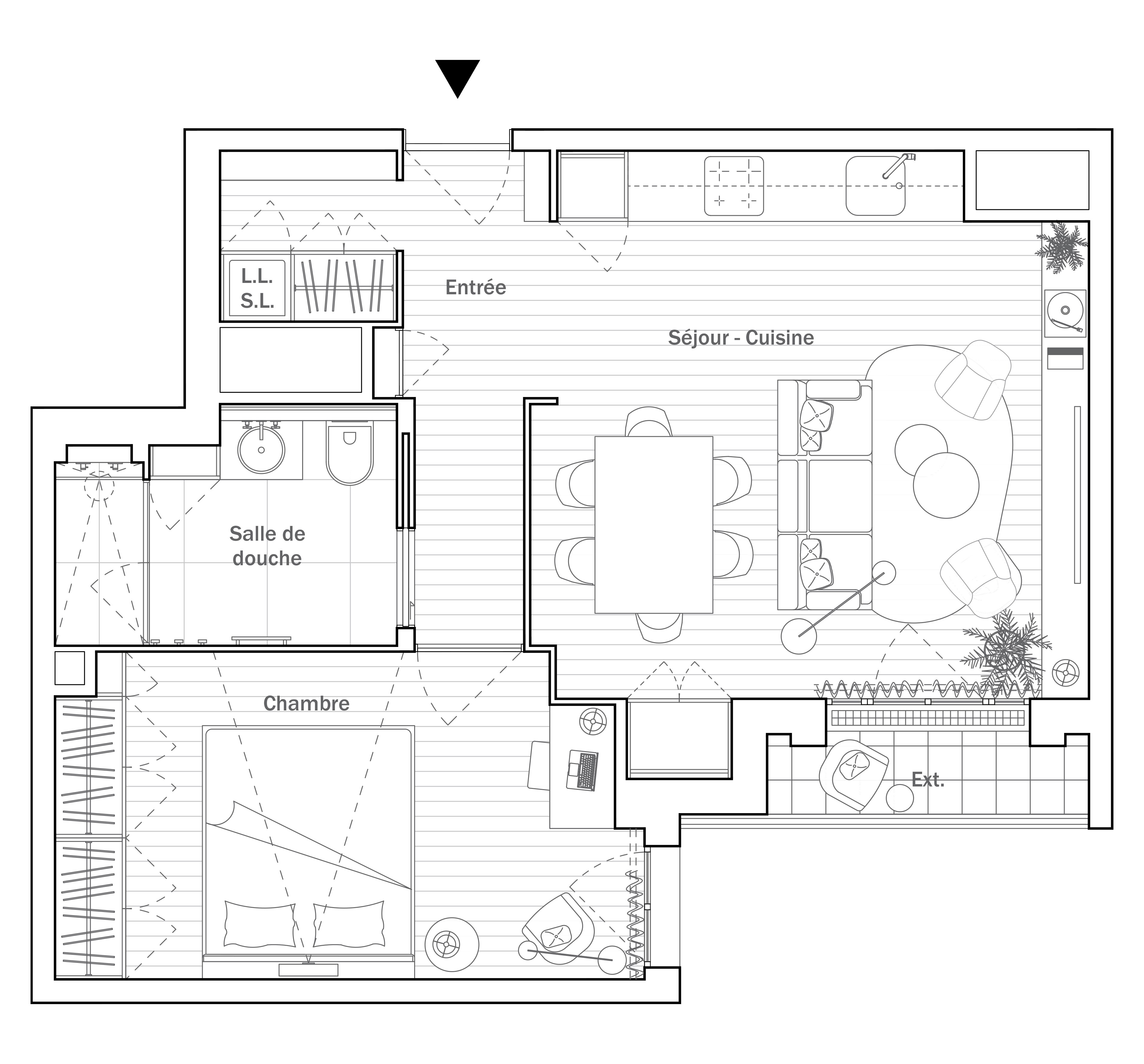
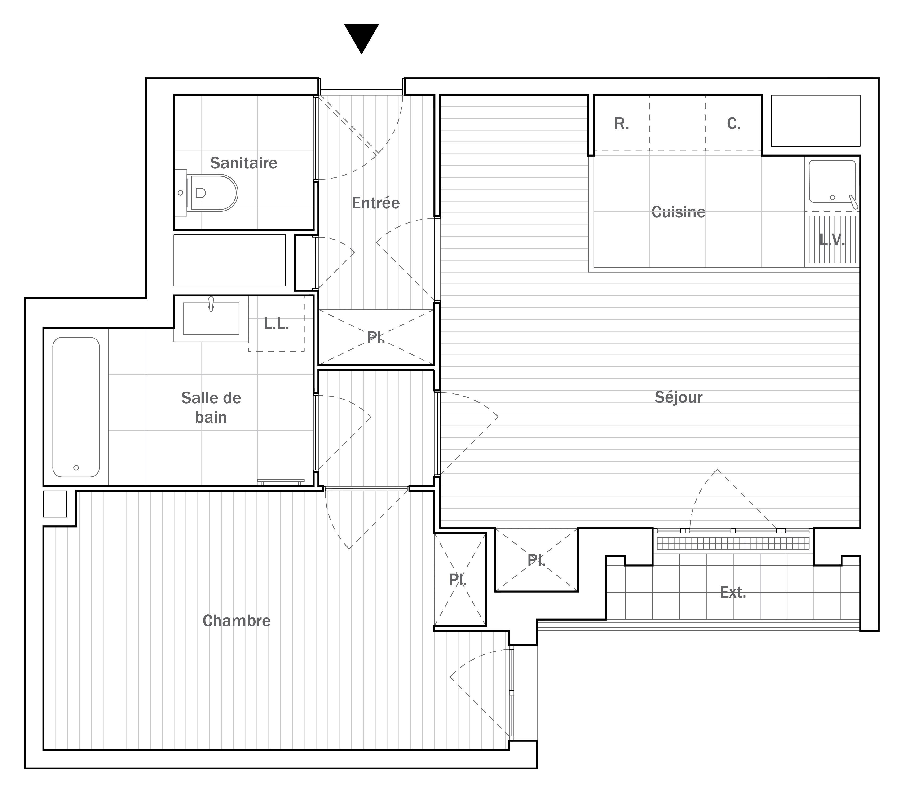
Projet de rénovation complète d’un appartement T2 de 48 m², disposant d’un extérieur de 2 m². L’objectif principal était de clarifier les usages en distinguant nettement l’espace nuit — chambre et salle de douche — de l’espace jour — séjour et cuisine — tout en utilisant l’entrée comme zone de transition. Le travail a également porté sur l’optimisation de la cuisine, afin de la rendre à la fois plus fonctionnelle et plus discrète, intégrée naturellement dans le séjour pour renforcer la perception d’un espace plus généreux.
L’entrée a été entièrement repensée afin d’y intégrer des rangements spécifiques pour les chaussures et les vestes, ainsi qu’un espace buanderie dissimulé dans le placard, permettant de libérer les autres pièces de ces contraintes.
Dans la salle de bain, la suppression de la baignoire au profit d’une douche répond à un usage quotidien plus pratique, rapide et économe, tout en améliorant l’ergonomie générale de la pièce.
Enfin, la chambre bénéficie d’un dressing sur mesure conçu pour exploiter pleinement la niche existante. Ce nouvel aménagement offre une capacité de rangement significative et permet l’intégration d’un bureau en console, optimisant l’espace sans en compromettre le confort.
Client
Client privé
Project
Architecture d'intérieur
Year
2025
Défiler




















Autres projets