05 JB.
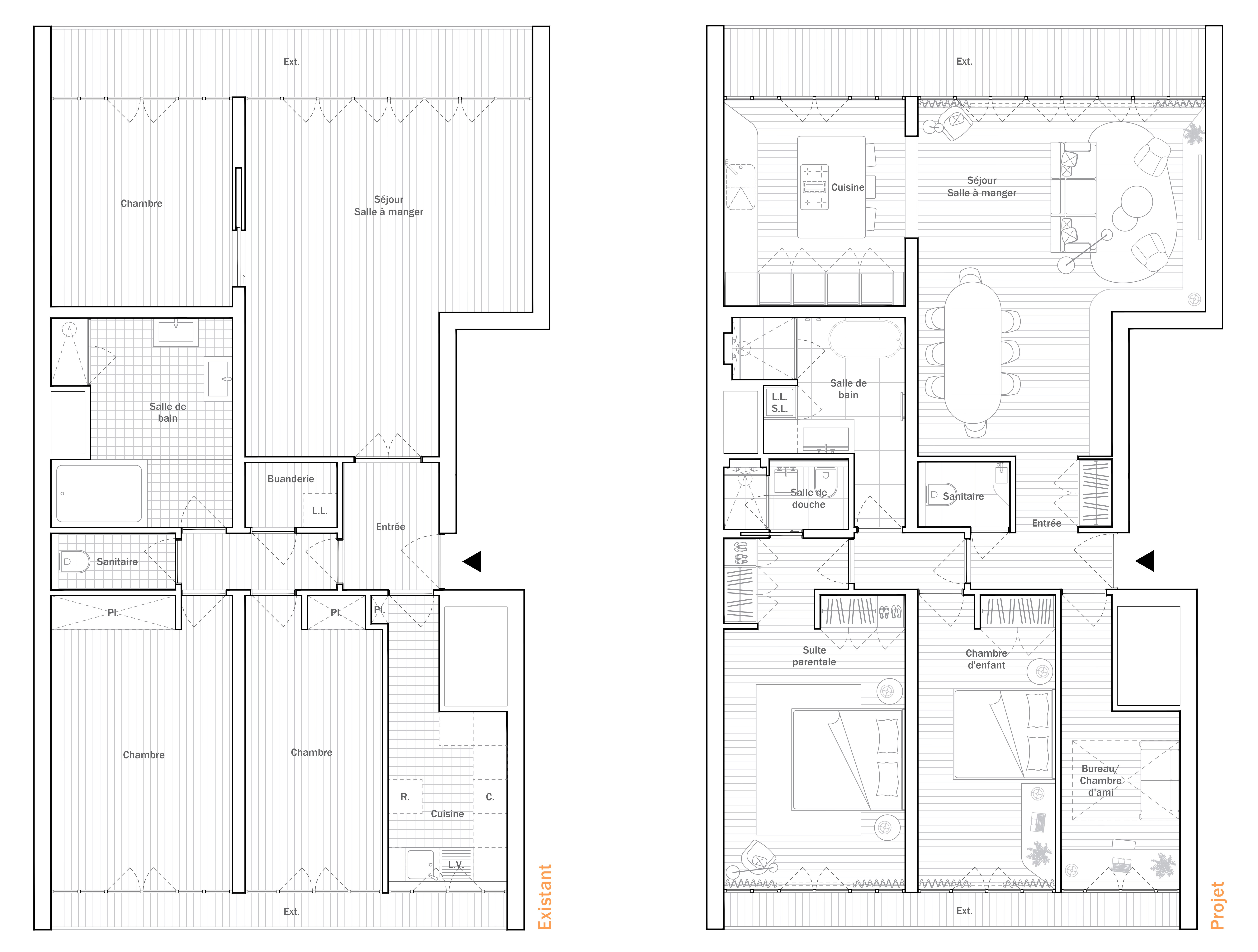
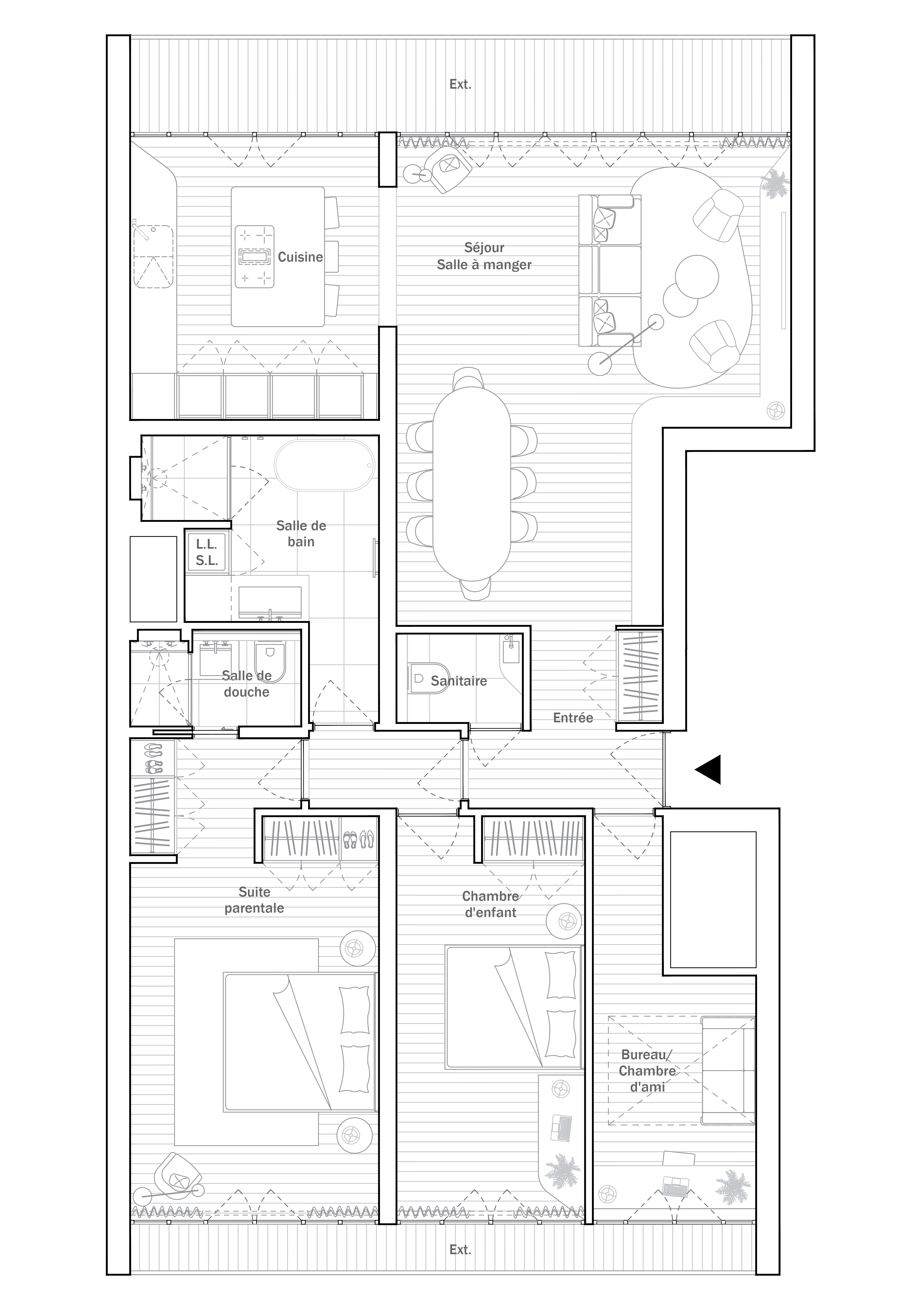
Projet de rénovation complète d’un appartement T4 de 93 m², traversant, avec deux balcons filants sur les deux façades.
Ce projet porte sur la rénovation complète d'un appartement existant, caractérisée par une modification majeure de la distribution des pièces et des circulations. L'intervention architecturale vise à inverser la logique du plan d'origine pour regrouper les pièces de vie et optimiser les surfaces de service.
La transformation principale réside dans le déplacement de la cuisine. Initialement située en partie arrière de l'appartement, celle-ci a été transférée dans le volume de l'ancienne chambre donnant sur la façade principale. Cette nouvelle implantation permet d'ouvrir la cuisine sur le séjour et la salle à manger, créant ainsi un espace de réception unique et traversant, structuré par un îlot central. En contrepartie, l'espace libéré par l'ancienne cuisine a été requalifié en pièce polyvalente, aménagée ici en bureau et chambre d'appoint.
La zone nuit a été réorganisée autour d'une suite parentale située dans l'ancienne chambre principale. Cet espace a été densifié par l'ajout de larges linéaires de rangements intégrés formant un dressing sur mesure en vis-à-vis du lit. La configuration de la suite est complétée par la création d'une salle de douche privative attenante, équipée d'un meuble vasque et d'un sanitaire, offrant ainsi une autonomie complète par rapport au reste du logement.
Concernant les pièces d'eau et techniques, le plan a été rationalisé pour accroître la fonctionnalité globale. La salle de bain principale a été remaniée et la buanderie, qui constituait auparavant une pièce indépendante, a été supprimée au profit de placards techniques intégrés (lave-linge et sèche-linge) situés à proximité des réseaux d'eau. Cette optimisation a permis de récupérer de la surface habitable tout en clarifiant les parcours de circulation au sein de l'appartement.
Client
Client privé
Project
Architecture d'intérieur
Year
2026
Défiler

















Autres projets
